Elevated Queenslander set over two levels, nestled within the prestigious and highly coveted area of Auchenflower. Designed for Queensland living, this captivating property seamlessly blends timeless character elements and finishes with contemporary styling, creating an exquisite haven for discerning homeowners seeking the perfect blend of charm and classic Queenslander elegance.
Indulge in the character and modern lines of this two-level residence, offering a creatively designed floor plan that optimizes both functionality and style for many family needs. Downstairs, a dedicated living space awaits, providing effortless flow from the generous kitchen to the inviting living and dining room. Step onto the front balcony overlooking the pool area, where you can relax and entertain guests while keeping an eye on your children at play.
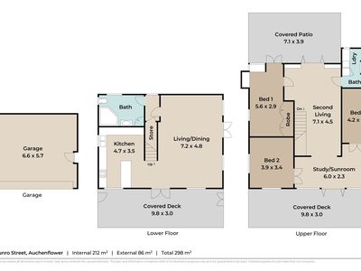
Upstairs, discover a private sanctuary where the sleeping quarters await. Three large bedrooms offer ample space for restful nights, while a dedicated study nook and library provide areas for focused work or quiet relaxation. Additionally, a second living area enhances the flexibility of the space, ensuring there is room for everyone to unwind. Step outside onto two spacious outdoor entertaining areas of the front deck and rear covered patio leading out to the grassy tiered lawned gardens, perfect for enjoying the sunshine and creating cherished memories during summer gatherings.
Features Include:
• Three generous-sized bedrooms, offering comfort and privacy
• Two full bathrooms, meticulously designed for indulgent relaxation
• Modern kitchen equipped with a dishwasher for effortless culinary endeavours
• Open plan living, dining, and kitchen area, fostering a harmonious flow of space
• Large pool and grassy lawn areas for easy entertaining across the 607m2 block
• Dedicated study nook, promoting a productive atmosphere for work or study
• Air conditioning and fans throughout, ensuring year-round comfort
• Decks on both levels which capture lovely urban views and breezes
• Enclosed and secure double garage
• Ample storage, including an under stairs cellar, catering to your organizational needs
Located in Auchenflower, this desirable position is within the catchment area of Rainworth State School and also close to Montessori Kindy, BBC, the city Grammar Schools, Wesley Hospital, UQ & QUT. Plenty of parklands plus Brisbane Botanic Gardens will provide you and your family loads of leisure options. This location further offers easy access to the ICB, Western Freeway and easy access to Brisbane's CBD. Easy shopping with Toowong Village, Indooroopilly Shopping Town and Ashgrove hubs all within close proximity.
Embrace the unparalleled elegance of this Queenslander retreat. Please call Glynis on 0403 333 013 and Lucas on 0413 654 823 to embark on a journey of refined living and secure your slice of timeless charm combined with modern indulgence.
(Whilst all due diligence has been taken in the preparation of this document, there is no guarantee as to the accuracy of information provided. It is recommended that purchasers conduct their own enquiries and searches prior to purchase).




































